Porzione di bifamiliare in vendita

Selvazzano Dentro, Via Vespucci - San Domenico
€ 550.000
5 locali 5 locali
184 Mq 184 Mq
3 bagni 3 bagni

Porzione di bifamiliare in vendita

Selvazzano Dentro, Via Vespucci - San Domenico

Descrizione annuncio

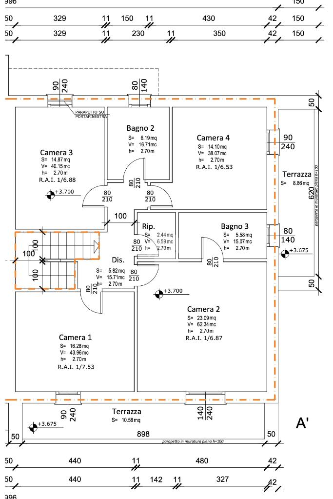
Nel cuore di uno dei quartieri residenziali più esclusivi e tranquilli di San Domenico, nasce una nuova villa bifamiliare pensata per offrire comfort, eleganza e qualità della vita ai massimi livelli.

L’abitazione, attualmente in costruzione, si sviluppa su due livelli per un totale di 184 mq calpestabili interni, con spazi ben distribuiti e progettati per garantire luminosità e funzionalità in ogni ambiente. La zona giorno di 60mq si apre in modo accogliente, ideale per la vita quotidiana e per momenti conviviali, mentre la zona notte offre quattro ampie camere matrimoniali, tre bagni moderni, curati nei dettagli, e una comoda lavanderia separata, pensata per rendere ancora più pratica la gestione degli spazi domestici. All’esterno, un piacevole terrazzo e il giardino privato permettono di vivere appieno gli spazi all’aria aperta, in totale privacy e tranquillità.

A completare la proprietà troviamo un garage doppio e un ulteriore posto auto, garantendo così tutta la comodità necessaria per la famiglia.

Grande attenzione è stata dedicata anche all’efficienza energetica e al comfort abitativo: la villa è in classe A4 ed è dotata di impianto fotovoltaico da 8 kW, ventilazione meccanica controllata, riscaldamento a pavimento e pompa di calore, soluzioni all’avanguardia che assicurano risparmio energetico e benessere in ogni stagione.

Una soluzione ideale per chi desidera vivere in un contesto riservato ed elegante, senza rinunciare alla modernità e alla sostenibilità.

Mostra tutto

Nelle vicinanze

Trasporto pubblico Trasporto pubblico
Selvazzano / Vespucci
Selvazzano / Vespucci
70 m
Selvazzano / Levico
Selvazzano / Levico
250 m
Ricariche auto elettriche Ricariche auto elettriche
EUROSPAR Selvazzano becharge
2,1 Km
Scuole Scuole
Scuole
640 m
Scuola Primaria “Don Angelo Bertolin”
1,8 Km
Scuola Materna "Gesù Bambino"
2,9 Km
Farmacia Farmacia
Farmacia San Domenico
890 m
Farmacia Feriole Dr. Gobbin Alessandro
2,6 Km
Ospedali Ospedali
ULSS 6 Euganea
140 m
Supermercati Supermercati
Coop
510 m
Prix
1,1 Km
Ali
1,2 Km
NaturaSi
1,8 Km
Eurospar
2,1 Km
Negozi Negozi
Pasticceria Da Angelo
560 m
Finotto Moda
960 m
Bar Bar
Bar
480 m
Terza Media
620 m
Bar Centrale
1,3 Km
Ristoranti Ristoranti
Osteria Del Picchio
730 m
Pizzeria Tommy Il Cantiere della Pizza
920 m
Antiche Cantine Zaccaria
1,0 Km
Trattoria "Da Arturo"
1,1 Km
Pizzeria
1,2 Km
Mostra tutto

Caratteristiche

Rif.:
61202901
Piano:
1 di 2 (Piano su più livelli)
Box:
1
Posti auto:
1
Terrazzi:
1
Camere da letto:
4
Mostra tutto
Prezzo Prezzo
€ 550.000
Rata mutuo Rata mutuo
€ 2.600 / mese
Spese annue Spese annue
€ 0
Proponi il tuo prezzoProponi il tuo prezzo

Classe Energetica

A4
A4
A4
A4
A4
A4
A4
A4
A4
EP invernale del fabbricato:
EP estiva del fabbricato:
Anno di costruzione:
2026
Riscaldamento:
Autonomo
Tipo impianto:
A pavimento
Tipo alimentazione:
Pannelli

Ti interessa visionare l'immobile?

Fissa un appuntamento  Fissa un appuntamento

Richiedi informazioni

Clicca su Leggi per aprire l'informativa
* Questi campi sono obbligatori

Calcola il tuo mutuo

Semplice e senza impegno
Anticipo

( % )
Mutuo

( % )

pochi semplici passi

inserisci i tuoi dati
Questionario completato
Grazie per aver richiesto un appuntamento senza impegno con un nostro Consulente del Credito e Assicurativo.

Hai inserito correttamente tutti i dati necessari e a breve riceverai una e-mail con un link da convalidare per inviare i tuoi dati.
Affiliato
Kira Ovest Sas
Via Padova, 79 35030 Selvazzano Dentro (PD)

Il nostro staff


  • Pier Luca Bortolotto
    Responsabile

  • Alessandra Basile
    Coordinatrice

  • Carmela Cento
    Collaboratrice

  • Razvan-Andrei Munchiu
    Collaboratore

  • Andrea Massaro
    Affiliato
Via Padova, 79 35030 Selvazzano Dentro (PD)
Zona: Selvazzano Dentro-Tencarola-Caselle-San Domenico
Mostra su mappa
Orari: Dal Lunedì al Venerdì dalle 09.00 alle 12.30 e dalle 15.00 alle 19.30 Il Sabato dalle 9.00 alle 12.30 Pomeriggio su appuntamento.
Affiliato
Kira Ovest Sas
Via Padova, 79 35030 Selvazzano Dentro (PD)

2026 Tecnocasa Franchising S.p.A. - P. IVA 08365160152 - Via Monte Bianco 60/A 20089 Rozzano (MI). Ogni agenzia ha un proprio titolare ed è autonoma. Privacy policy | Policy utilizzo | Cookie policy