Porzione di bifamiliare in vendita

Selvazzano Dentro, Via Giovanni XXIII - Tencarola
€ 259.000
Prezzo aggiornato
4 locali 4 locali
300 Mq 300 Mq
4 bagni 4 bagni

Porzione di bifamiliare in vendita

Selvazzano Dentro, Via Giovanni XXIII - Tencarola

Descrizione annuncio

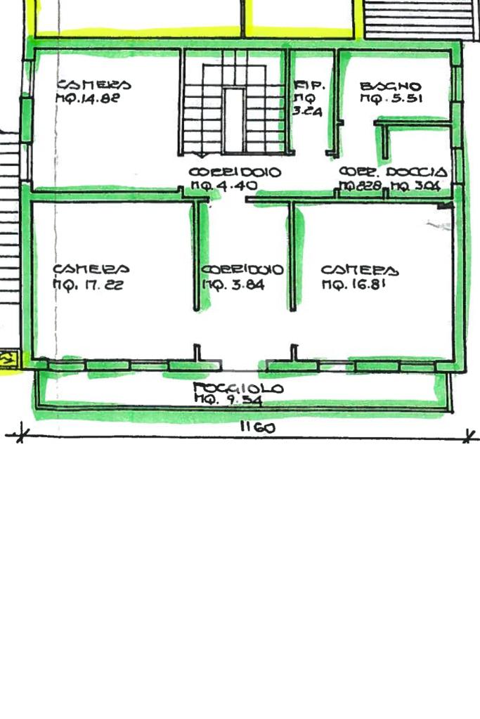
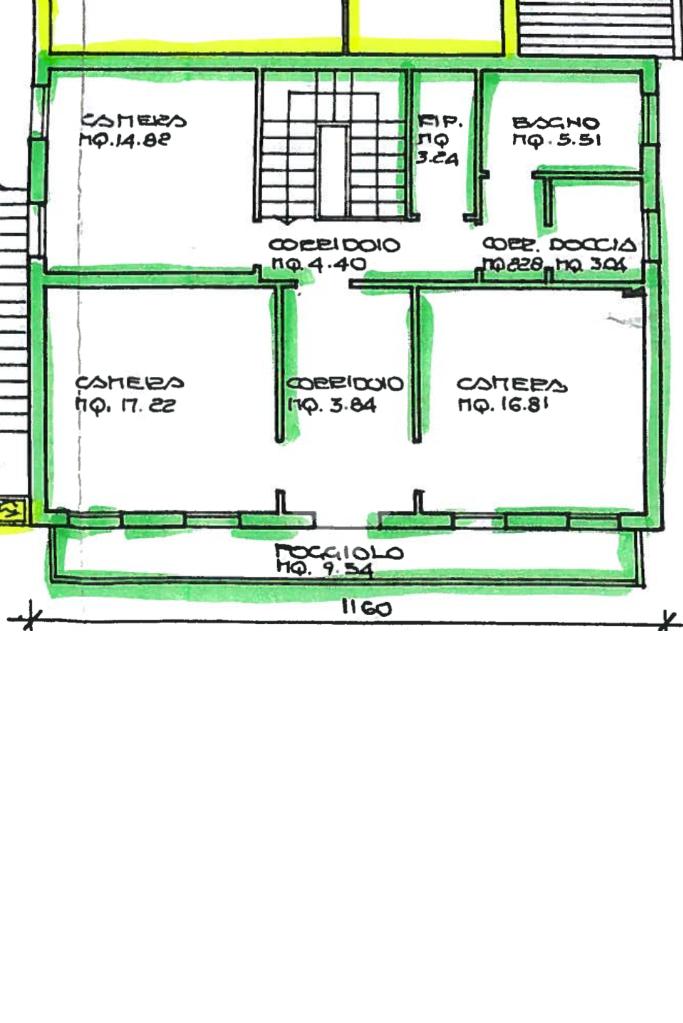
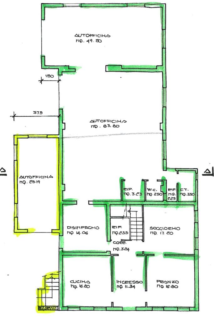
Proponiamo in vendita una porzione di bifamiliare, situata in un immobile risalente agli anni ’50 ma oggetto di vari interventi di ristrutturazione e ampliamenti nel corso degli anni. La soluzione si presta perfettamente a nuclei familiari numerosi o a chi desidera un’abitazione con spazi distinti ma collegati, offrendo al contempo privacy e versatilità.

L'unità, disposta su due livelli, si compone al piano terra di ingresso, soggiorno, cucina separata, sala da pranzo e ripostiglio. Una scala interna conduce al primo piano, dove si trovano tre camere da letto matrimoniali, due bagni finestrati, un ripostiglio e un poggiolo. L’unità è dotata di un impianto fotovoltaico da 3 kW e gode di accesso diretto a un ampio box ci circa 100 mq, in passato utilizzato come officina. Questa zona, ampliata nel 1988, include anche un’area bagno, una lavanderia e la centrale tecnica, offrendo spazi comodi e multifunzionali. Di pertinenza anche un ampio giardino di circa 700mq (evidenziata l'area in verde nella sezione delle planimetrie).

La proprietà rappresenta una soluzione ideale per chi cerca indipendenza abitativa senza rinunciare alla vicinanza, con ambienti ampi, funzionali e dotati di tutti i comfort. Ottima anche come investimento, grazie alla possibilità di destinare una delle due unità alla locazione o ad uso professionale.

Mostra tutto

Nelle vicinanze

Trasporto pubblico Trasporto pubblico
Tencarola / Postumia
Tencarola / Postumia
240 m
Tencarola / Aquileia
Tencarola / Aquileia
240 m
Ricariche auto elettriche Ricariche auto elettriche
EUROSPAR Selvazzano becharge
390 m
Centro Commerciale Le Brentelle
2,7 Km
Scuole Scuole
Scuole
510 m
Scuola Primaria “Don Angelo Bertolin”
730 m
Istituto Tecnico Agrario Duca degli Abruzzi
1,8 Km
Istituto Professionale di Stato per l'Agricoltura e l'Ambiente San Benedetto da Norcia
1,8 Km
Scuola primaria Prati
1,9 Km
Farmacia Farmacia
Farmacia San Domenico
1,2 Km
Farmacia comunale Ciamician
1,5 Km
Farmacia Ai Colli
1,5 Km
Farmacia Andreoli
2,3 Km
Parafarmacia alle Brentelle
2,6 Km
Ospedali Ospedali
ULSS 6 Euganea
1,9 Km
Complesso Socio-Sanitario "Ai Colli"
2,3 Km
Dipartimento Socio Sanitario ai Colli
2,4 Km
Supermercati Supermercati
NaturaSi
220 m
Eurospar
440 m
Ali
670 m
Prix
850 m
Alì
1,8 Km
Negozi Negozi
Finotto Moda
1,0 Km
Pasticceria Da Angelo
1,3 Km
Negozi
1,9 Km
Panificio Da Luca
2,0 Km
Fior di pane
3,0 Km
Bar Bar
Bar
1,2 Km
Terza Media
2,5 Km
Bar Centrale
2,5 Km
Gino's Bbq Bar Ristorante
2,8 Km
Kè Bolà Cuba
2,9 Km
Ristoranti Ristoranti
Baki
660 m
Trattoria "Da Arturo"
720 m
Antiche Cantine Zaccaria
830 m
Pizzeria Tommy Il Cantiere della Pizza
1,1 Km
Agriturismo La Primizia
1,5 Km
Mostra tutto

Caratteristiche

Rif.:
61125425
Piano:
Su più livelli di 2
Totale piani:
2
Box:
2
Balconi:
1
Camere da letto:
3
Mostra tutto
Prezzo Prezzo
€ 259.000
Rata mutuo Rata mutuo
€ 1.220 / mese
Spese annue Spese annue
€ 0
Proponi il tuo prezzoProponi il tuo prezzo

Classe Energetica

G
G
G
G
G
G
G
G
G
EP invernale del fabbricato:
EP estiva del fabbricato:
Anno di costruzione:
1950
Riscaldamento:
Autonomo
Tipo impianto:
A radiatori
Tipo alimentazione:
Metano

Prezzo ridotto di €1 (5%%)

Ti interessa visionare l'immobile?

Fissa un appuntamento  Fissa un appuntamento

Richiedi informazioni

Clicca su Leggi per aprire l'informativa
* Questi campi sono obbligatori

Calcola il tuo mutuo

Semplice e senza impegno
Anticipo

( % )
Mutuo

( % )

pochi semplici passi

inserisci i tuoi dati
Questionario completato
Grazie per aver richiesto un appuntamento senza impegno con un nostro Consulente del Credito e Assicurativo.

Hai inserito correttamente tutti i dati necessari e a breve riceverai una e-mail con un link da convalidare per inviare i tuoi dati.
Affiliato
Fab4 Sas
Via Padova, 79 35030 Selvazzano Dentro (PD)

Il nostro staff


  • Pier Luca Bortolotto
    Affiliato

  • Alessandra Basile
    Coordinatrice

  • Carmela Cento
    Collaboratrice

  • Razvan-Andrei Munchiu
    Collaboratore

  • Andrea Massaro
    Responsabile
Via Padova, 79 35030 Selvazzano Dentro (PD)
Zona: Selvazzano Dentro-Tencarola-Caselle-San Domenico
Mostra su mappa
Orari: Dal Lunedì al Venerdì dalle 09.00 alle 12.30 e dalle 15.00 alle 19.30 Il Sabato dalle 9.00 alle 13.00 Pomeriggio su appuntamento.
Affiliato
Fab4 Sas
Via Padova, 79 35030 Selvazzano Dentro (PD)

2026 Tecnocasa Franchising S.p.A. - P. IVA 08365160152 - Via Monte Bianco 60/A 20089 Rozzano (MI). Ogni agenzia ha un proprio titolare ed è autonoma. Privacy policy | Policy utilizzo | Cookie policy