Rustico in vendita

Selvazzano Dentro, Via Vegri - Pralungo
€ 185.000
4 locali 4 locali
302 Mq 302 Mq
1 bagno 1 bagno

Rustico in vendita

Selvazzano Dentro, Via Vegri - Pralungo

Descrizione annuncio

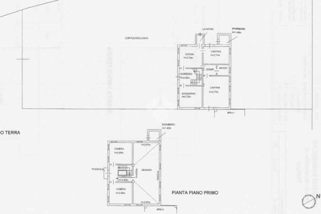
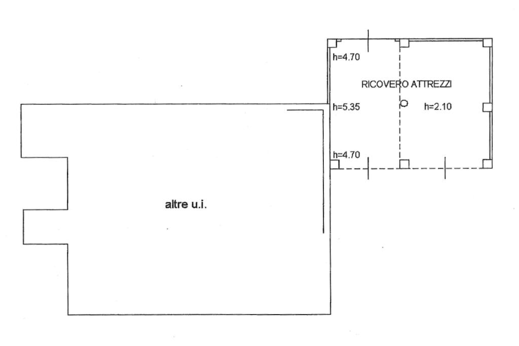
In vendita affascinante rustico del 1923, situato in posizione tranquilla e immersa nel verde, con una superficie coperta complessiva di 302 mq, comprensiva di un ricovero attrezzi esterno. L’immobile insiste su un ampio lotto di terreno di circa 4200 mq, ideale per chi desidera vivere a contatto con la natura o per chi è alla ricerca di un contesto riservato con ampi spazi esterni.

La casa si sviluppa su due livelli. Al piano terra si trovano un ingresso, una cucina separata dalla zona giorno, una cantina, un bagno e una spaziosa rimessa, originariamente adibita a stalla, oggi con molteplici possibilità di utilizzo. Al primo piano sono presenti due stanze e un ex fienile, attualmente trasformato in sottotetto, che offre ulteriori potenzialità di recupero e personalizzazione.

L’immobile conserva il fascino dell’epoca con elementi architettonici originali e strutture solide, risultando perfetto per un intervento di ristrutturazione che valorizzi il carattere autentico della casa, adattandolo alle esigenze abitative contemporanee.

Soluzione ideale per chi cerca un’abitazione con storia, ampi spazi sia interni che esterni, o un’opportunità di investimento nel verde.

Per ulteriori informazioni o per fissare una visita, non esitare a contattarci.

Mostra tutto

Nelle vicinanze

Trasporto pubblico Trasporto pubblico
Tencarola Capolinea
Tencarola Capolinea
820 m
Tencarola / Don Bosco
Tencarola / Don Bosco
1,0 Km
Ricariche auto elettriche Ricariche auto elettriche
EUROSPAR Selvazzano becharge
1,8 Km
Ristorante Le Calandre | EnelX
2,0 Km
Centro Commerciale Le Brentelle
2,2 Km
Scuole Scuole
Scuola Primaria “Don Angelo Bertolin”
720 m
Scuole
810 m
Liceo Scientifico Galileo Galilei
1,3 Km
Istituto Professionale di Stato per l'Agricoltura e l'Ambiente San Benedetto da Norcia
2,5 Km
Istituto di Istruzione Superiore Pietro Scalcerle
2,7 Km
Farmacia Farmacia
Farmacia Andreoli
1,3 Km
Farmacia Sarmeola
2,0 Km
Farmacia San Domenico
2,0 Km
Parafarmacia alle Brentelle
2,1 Km
FarmaNatura
2,2 Km
Ospedali Ospedali
ULSS 6 Euganea
2,1 Km
Supermercati Supermercati
Ali
940 m
NaturaSi
1,6 Km
Prix
1,8 Km
Eurospar
1,9 Km
Alimentari da Sergio
1,9 Km
Negozi Negozi
Panificio Da Luca
1,7 Km
Pasticceria Da Angelo
1,8 Km
Il forno del buon pane
1,9 Km
Finotto Moda
1,9 Km
Pane e sfizi
2,1 Km
Bar Bar
Bar
1,7 Km
Bar Centrale
2,0 Km
Caffetteria René
2,2 Km
la Mulata
2,3 Km
Terza Media
2,6 Km
Ristoranti Ristoranti
Agriturismo La Primizia
1,0 Km
Trattoria "Da Arturo"
1,6 Km
Antiche Cantine Zaccaria
1,7 Km
Baki
1,7 Km
Hisyou Rubano
1,9 Km
Mostra tutto

Caratteristiche

Rif.:
61155784
Piano:
2 di 2 (Piano su più livelli)
Box:
1
Balconi:
1
Camere da letto:
3
Arredamento:
Assente
Mostra tutto
Prezzo Prezzo
€ 185.000
Rata mutuo Rata mutuo
€ 875 / mese
Spese annue Spese annue
€ 0
Proponi il tuo prezzoProponi il tuo prezzo

Classe Energetica

G
G
G
G
G
G
G
G
G
EP invernale del fabbricato:
EP estiva del fabbricato:
Anno di costruzione:
1929
Riscaldamento:
Autonomo
Tipo impianto:
A stufa
Tipo alimentazione:
Altro

Ti interessa visionare l'immobile?

Fissa un appuntamento  Fissa un appuntamento

Richiedi informazioni

Clicca su Leggi per aprire l'informativa
* Questi campi sono obbligatori

Calcola il tuo mutuo

Semplice e senza impegno
Anticipo

( % )
Mutuo

( % )

pochi semplici passi

inserisci i tuoi dati
Questionario completato
Grazie per aver richiesto un appuntamento senza impegno con un nostro Consulente del Credito e Assicurativo.

Hai inserito correttamente tutti i dati necessari e a breve riceverai una e-mail con un link da convalidare per inviare i tuoi dati.
Affiliato
Kira Ovest Sas
Via Padova, 79 35030 Selvazzano Dentro (PD)

Il nostro staff


  • Pier Luca Bortolotto
    Responsabile

  • Alessandra Basile
    Coordinatrice

  • Carmela Cento
    Collaboratrice

  • Razvan-Andrei Munchiu
    Collaboratore

  • Andrea Massaro
    Affiliato
Via Padova, 79 35030 Selvazzano Dentro (PD)
Zona: Selvazzano Dentro-Tencarola-Caselle-San Domenico
Mostra su mappa
Orari: Dal Lunedì al Venerdì dalle 09.00 alle 12.30 e dalle 15.00 alle 19.30 Il Sabato dalle 9.00 alle 12.30 Pomeriggio su appuntamento.
Affiliato
Kira Ovest Sas
Via Padova, 79 35030 Selvazzano Dentro (PD)

2026 Tecnocasa Franchising S.p.A. - P. IVA 08365160152 - Via Monte Bianco 60/A 20089 Rozzano (MI). Ogni agenzia ha un proprio titolare ed è autonoma. Privacy policy | Policy utilizzo | Cookie policy